變形縫圖集04cj013,變形縫圖
贛04J101_變形縫,第14頁2號大樣水磨石地面磚樓面伸縮縫,如下圖。
12J8 樓梯,48頁不是外墻變形縫,圖如下,你會不會是要查看 新12J08 地下工程防水,48頁是雙墻變形縫防水做法,如下圖2,如果猜對請點一下采納,要是不對請追問。

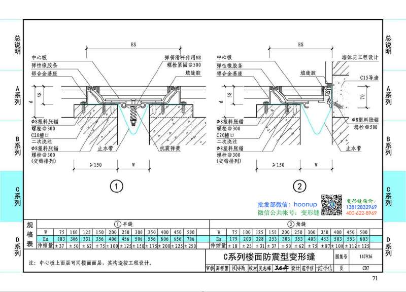
14J936變形縫建筑構造,AQ3頁1號大樣,見下圖左上角1。
變形縫 bian xing feng 變形縫 deformation joint 建筑物在外界因素作用下常會產生變形,導致開裂甚至破壞變形縫是針對這種情況而預留的構造縫變形縫可分為伸縮縫沉降縫防震縫三種伸縮縫建筑構件因溫度和濕度等因素。
種植屋面變形縫cad怎么畫,具體步驟如下1第一步我們打開Autocad2002軟件進入繪圖界面繪制屋面變形縫詳圖,選擇創建圖形,選擇A3樣板圖框作為繪圖圖框,框選A3樣板圖形將圖形放大10倍,全部顯示作圖區域,選擇標注樣式選項。
外墻變形縫是變形縫裝置中的一種,是以外墻面使用部位為依據的變形縫裝置為了防止因氣溫變化墻體材料不均勻沉降以及地震等因素使得建筑物外墻面發生裂縫從而導致破壞,設計的時候預先在外墻面變形敏感部位將建筑物的墻面斷開。
三種變形縫對應變形的原因及斷開部位簡述如下變形縫是伸縮縫沉降縫和防震縫的總稱建筑物在外界因素作用下常會產生變形,導致開裂甚至破壞變形縫是針對這種情況而預留的構造縫1伸縮縫建筑構件因溫度和濕度等因素的。
這個是“外墻變形縫”做法的詳圖索引標注,具體意義如下1小圓圈圈住的位置就是外墻變形縫298ZJ1111998年頒布實行的序號為111的中南地區湖北河南湖南廣東廣西海南六省聯合編制的建筑類標準設計圖集。
變形縫處可以在縫的兩側設墻,也可以在縫的一側設墻,還可以在縫的兩側都不設墻者的根據業主的需要建筑的功能等決定,而變形縫的構造做法應該與設墻的情況相適應變形縫是伸縮縫沉降縫和防震縫的總稱建筑物在。
2規劃規范為了便于廣闊修建師在規劃時選用變形縫設備,中國修建規范規劃研究院已于2004年1月出版發行了變形縫修建構造04CJ0113國家修建規范規劃參閱圖集各省市區域也連續出版發行了修建規范規劃圖籍3。
外墻變形縫有四種不同的類型,第一種是金屬蓋板型第二種是金屬卡鎖型第三種橡膠嵌平型和第四種抗震型的外墻變形縫每一種的性能都是一樣的,例如說外墻變形縫的版型可以幫助墻面防水,以此用來保護所用變形縫的建筑。
13BJ212 建筑外保溫節能75%,101頁手機直接放大查看,電腦對圖片右鍵“在新標簽頁中打開鏈接”查看,如果有用請點一下采納。
施工人員照圖施工本圖集所編內容較全面,總說明中對建筑變形縫建筑變形縫裝置的選用要點適用范圍構造特征材料和施工要求等進行了圖文并茂的詳細論述本圖集采用分系列編排的形式,方便使用者配套選用。
做變形縫的時候有三本圖集 分別是04CJ011 ,04CJ012, 04CJ013。

外墻變形縫做法節點圖詳解1金屬蓋板型外墻變形縫做法2金屬卡鎖型外墻變形縫做法3橡膠嵌平型外墻變形縫做法4抗震型外墻變形縫做法我們再來看下施工現場錯誤的外墻變形縫做法,下面是外墻變形縫節點的幾點不正確。
圖上每層怎么做都寫得很清楚了,你自己仔細看一下就明白了不過這樣的做法已經過時了,費力費事費錢,還不堅固耐用你可以參照國標變形縫圖集14J936選用 去我網站看看吧,聯系我也可以相互學習討論。
12J14 建筑變形縫,河北版,我只有拍照版pdf,清晰度一般2620x1964,如果采納我就給你發送其實內蒙和天津的有掃描版內容頁面頁碼都一樣。
免責聲明: 本站提供的任何內容版權均屬于相關版權人和權利人,如有侵犯你的版權。 請來信指出,我們將于第一時間刪除! 所有資源均由免費公共網絡整理而來,僅供學習和研究使用。請勿公開發表或 用于商業用途和盈利用途。
本文鏈接:http://www.366700.com/ziyuan/18905.html
發表評論