酒店豪華套房平面圖,套房平面圖
新農村自建房有些需求與過去不一樣了,最重要的變化有三點,說的不對請大家批評指正。第一就是入戶車庫,現在汽車已經普及,尤其是南方農村一年下雨100天的地方,有個車庫還是方便。第二就是套間,也就是主臥或其他臥室內自帶衛生間和衣帽間,會更加舒適和方便。第三就是露臺,與過去曬臺不一樣,適當綠化可以納涼,休憩,提高生活品質。看看今天這套新農村別墅戶型怎么樣?占地11.5米X11.5米,符合宅基地審批要求,三層,有車庫,二樓主臥是套間,頂樓有露臺,供大家自建房參考。

一層平面圖:大部分農村建房子要考慮道路條件,車庫能放北邊更好,但只有南邊道路的情況下,也沒得選擇。
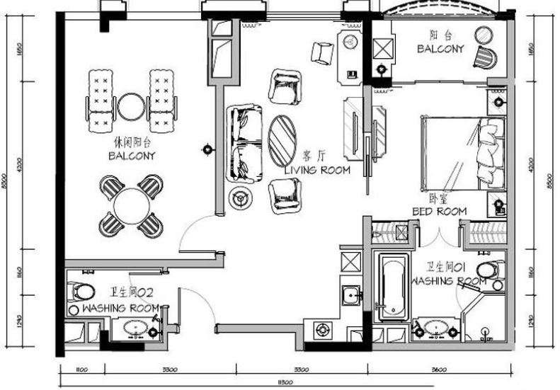
二樓平面圖:主臥是套間,自帶超大衣帽間以及帶浴缸的衛生間。
三層平面圖:新農村建房子,露臺還是必須要有,雖然已經不要晾曬糧食,但適當綠化可以讓生活更加愜意。
立面圖:面磚和涂料的搭配經濟適用,如果采用文化石和真石漆效果會更加好。
微信公眾號:住宅公園,450套農村自建房圖紙下載,民宅定制設計

免責聲明: 本站提供的任何內容版權均屬于相關版權人和權利人,如有侵犯你的版權。 請來信指出,我們將于第一時間刪除! 所有資源均由免費公共網絡整理而來,僅供學習和研究使用。請勿公開發表或 用于商業用途和盈利用途。
本文鏈接:http://www.366700.com/ziyuan/20037.html
發表評論