建筑施工圖建筑施工圖紙符號大全
在建筑工程專業領域中,按照不同的工種將建筑工程項目施工圖分為建筑施工圖結構施工圖設備施工圖電氣施工圖等建筑施工圖簡稱建施,表示建筑物的總體布局外部造型內部布置細部構造內外裝飾固定設施和施工要求等。
說明類的圖紙如專業設計總說明,消防設計說明,節能設計說明,平面圖類,立面圖類,剖面圖類,大樣類一般項目的建筑圖紙為例圖號+圖名JZML01建筑圖紙目錄,JZ001建筑專業設計說明,JZ002節能設計說明,JZ101總平面圖,JZ201~JZ299各層平面圖,JZ301~JZ399各立面圖,JZ401~JZ。
建筑施工圖主要用來表示房屋的規劃位置外部造型內部布置內外裝修細部構造固定設施及施工要求等它包括施工圖首頁建筑設計總說明建筑工程做法說明建筑工程防火設計專篇建筑工程保溫節能專篇總平面圖平面圖立面圖剖面圖和詳圖\x0d\x0a第一,施工圖首頁主要是目錄,說明每張圖的所在頁碼每。
施工圖設計是根據已經批準的初步設計文件,對建設項目各單項工程及建筑群體組成進行詳細的設計,繪制施工圖編制工程預算書,作為工程施工的依據。

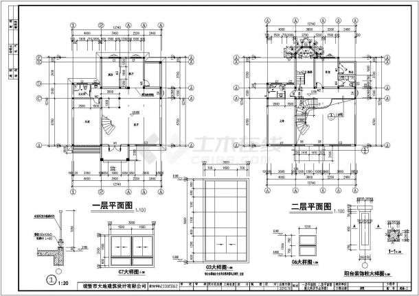
建筑施工圖是根據正投影的原理和相關的專業知識繪制的工程圖樣,其主要任務在于表示房屋的內外形狀平面布置樓層層高及建筑構造裝飾做法等,簡稱“建施”,它是各類施工圖的基礎和先導,也是指導土建施工的主要依據之一#xF3D7#xFE0F結構施工圖結構施工圖是關于承重構件的布置使用的材料形狀大小及內部夠早的工程圖樣。

建筑施工圖包含哪些圖件內容 一施工圖分類 根據施工圖所表示的內容和各工種不同,分為了不同的圖件1建筑施工圖主要用來表示建筑物的規劃位置外部造型內部各房間的布置內外裝修構造和施工要求的圖件主要圖件有施工首頁圖建筑總平面圖建筑平面圖建筑立面圖建筑剖面圖 和建筑詳圖。
答建筑施工圖,簡稱“建施”它一般由設計部門的建筑專業人員進行設計繪圖建筑施工圖主要反映一個工程的總體布局,表明建筑物的外部形狀內部布置情況以及建筑構造裝修材料施工要求等,用來作為施工定位放線內外裝飾做法的依據,同時也是結構施工圖和設備施工圖的依據建筑施工圖包括建筑設計說明。
免責聲明: 本站提供的任何內容版權均屬于相關版權人和權利人,如有侵犯你的版權。 請來信指出,我們將于第一時間刪除! 所有資源均由免費公共網絡整理而來,僅供學習和研究使用。請勿公開發表或 用于商業用途和盈利用途。
本文鏈接:http://www.366700.com/ziyuan/23563.html

發表評論