四合院圖紙安得別墅四合院圖紙
廳前面的室外平臺改成了有頂棚的半室外平臺這個平臺的深度約有4米左右,雖然導致客廳沒有直射的強烈陽光,但卻感覺這樣柔和的室內光線更宜人,我們在中式四合院的設計中都采用了3米寬的檐廊,大家也不必擔心室內光線問題前。
這么大一個四合院不找家專業的設計公司給好好設計一番,會有點小遺憾的。
荒野行動歡樂島四合院建造步驟如下,1勘測先要做的就是了解自己宅基地的面積是多少用工具測量下宅基地面積,評估下建筑面積,然后再考慮應該設計什么樣的四合院2找圖紙四合院不僅要有房屋布局,還要設計出外觀樣式。

現在北京唯一一處出售的皇家四合院曾是乾隆生母大宅 復建后為臺灣人所有 “著名的九龍壁就是院子的影壁,正門處于北海公園內,后至平安大街”這樣一座院子,近日出現在了某房地產網站上標價出售,“建筑面積1668平方米。

長15米寬20米的農村四合院設計圖如下知識延展北京四合院是由東西南北四面房子圍合起來形成的內院式住宅北京四合院作為老北京人世代居住的主要建筑形式,馳名中外,世人皆知四合院的大門一般開在東南角或西北角。
我這里有棟四合院圖紙,并非標準的古建四合院,當然是仿古建筑了,但是可以供你參考,如果需要請留下郵箱給你發過去,希望對你有所幫助或者hi我聯系。
開間15米進深7米的四合院還能這樣建,我猜你沒見過 二層一間主臥,一間次臥,帶有一間書房廚房和住宅分離,可以防油煙,臥室也足夠一家人生活可以建旅游景區,也可以自家住,是不是很安逸摘要農村用的長15m寬7米。
首先我們要將圖紙整個給規劃好,要先做到設計,再進行施工,特別是給自己建房子,就更不能馬虎設計的時候就要參考四合院一些風格,比如四合院的靈魂就是四面建房,中間是庭院,而且這個庭院是露天的怎樣將這一個四面都是。
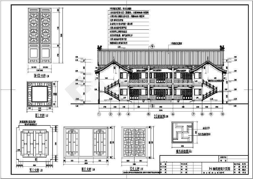
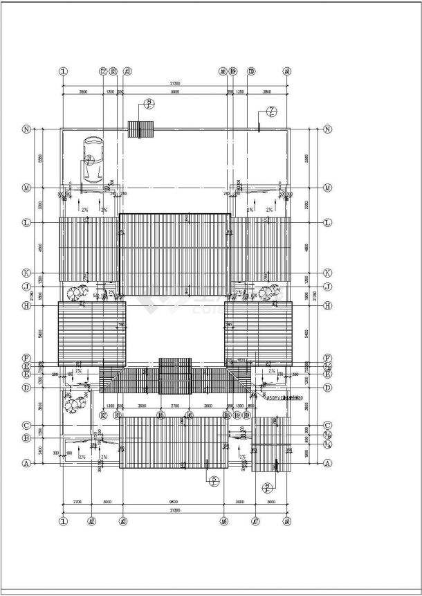
建筑平面圖表示建筑的平面形式大小尺寸房間布置建筑入口門廳及樓梯布置的情況,表明墻柱的位置厚度和所用材料以及門窗的類型位置等情況主要圖紙有首層平面圖二層或標準層平面圖頂層平面圖屋頂平面圖等。
免責聲明: 本站提供的任何內容版權均屬于相關版權人和權利人,如有侵犯你的版權。 請來信指出,我們將于第一時間刪除! 所有資源均由免費公共網絡整理而來,僅供學習和研究使用。請勿公開發表或 用于商業用途和盈利用途。
本文鏈接:http://www.366700.com/ziyuan/8037.html
發表評論