建造師
一級建造師 二級建造師
電渣壓力焊接頭驗收規范要求如下1四周焊包凸出鋼筋表面的高度不得小于4mm2鋼筋與電極接觸處,應無燒傷缺陷3接頭處彎折角不得大于3°4接頭...
WOW工程學摩托車圖紙可以在工程學供應商處購買在魔獸世界這款游戲中,工程學摩托車的圖紙是工程學專業的玩家制作的必要物品要獲取這些圖紙,玩...
1、第一步測量頂棚尺寸 首先需要對頂棚的尺寸進行測量,包括長度寬度高度等信息這一步需要使用測量工具,如卷尺測距儀等第二步繪制平面圖 在測...
接下來,freedwgeu 是歐洲知名的CAD資源網站,你可以在那里找到免費的DWG圖紙和設計模板,輕松下載使用dwgfreecom 也...
炎炎夏日,人們追求的便是舒適涼爽的體驗。中央空調是每個人心中必備的避暑神器,但我們在使用空調時對內部的構造并不熟悉,其中壓縮機為中央...
zdms065stc01自動尋的噴水滅火系統是利用自然界的可燃物質在燃燒時所釋放出的光譜射線為目標,采用特種紅紫外探測系統對燃著點火源射...
就你這個圖的畫法步驟,可以畫但請稍候,要有耐心,等我畫好發給你,來說明它畫示法的詳細步驟,稍候吧 圖太小,不好表達,多圖,1圖 畫好有關...
FCC認證可咨詢環測威檢測(百度搜索:環測威)就可以找到我們啦! 美國FCC認證介紹 FCC全稱美國聯邦通訊委員會Federal...
托馬斯·愛迪生(Thomas Edison)的多項發明和創新改變了美國人的工作和生活方式,他也因此聞名于世。 但他并不是完美的...
東南亞風格別墅設計效果圖一點擊圖片查看更多別墅相關內容設計重點進門玄關 編輯點評優雅精致的歐式風格玄關臺成了進門區域一道亮麗的風景,華美...
聽過很多安全理念,卻依然出事故,這下嚇壞了,終于感嘆:開兩年吊車了,這次被嚇壞了。 有事(問題、技術、配件產品)可以隨時@程程...
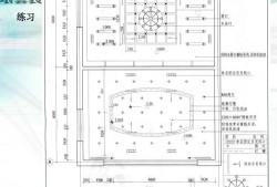
建筑占地面積為:15.64m*11.0m=170平方米; 建筑面積:480平方米【圖紙尺寸可根據實際情況修改】...
桁架4米*3米尺寸這樣計算桁架橫截面都是20cm,所以接頭處要減掉兩個20cm,桁架4米*3米尺寸就可以這樣計算,橫桿4米,豎著兩根就是...
力量增長系數 20 敏捷增長系數 12 智力增長系數 22 激光 Laser E向目標發射一束激光,造成傷害,并致盲他和他周圍的單位9...
DIN2543德標法蘭標準,DIN2543 PN16法蘭尺寸下載地址 參考資料三環法蘭。 在國家標準GBT 91192010板式平焊鋼制...
1.99元含建筑施工、結構配筋、水電全套圖紙! 房屋基本信息 占地尺寸:12.5m*11m 占地面積:138㎡ 建筑面積:212...